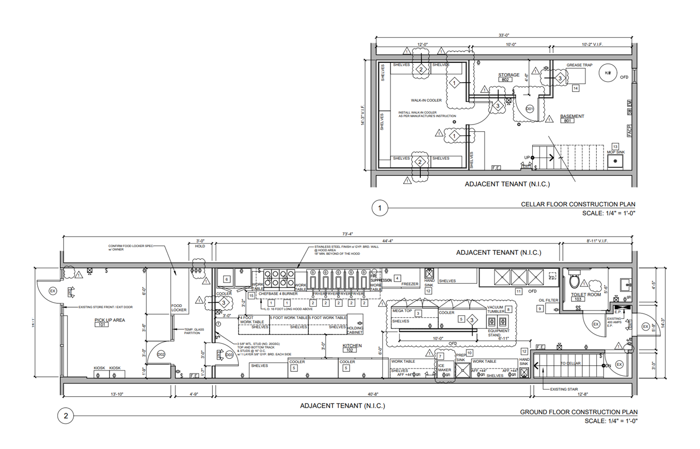
1,600 SF

Role: Project Manager — Owner’s Representative

Scope: Design & Field Coordination, Contractor & Cost Management, Schedule & Quality Control, Owner Representation

Developed and led the implementation of a fully contactless restaurant model utilizing food lockers and kiosk-based ordering to eliminate cashier staffing. (Reduced FOH labor from 3 -> 0 Staff)

Coordinated integrated system delivery across architects, kitchen equipment vendors, POS/locker technology providers, and operational teams to establish a seamless pickup workflow.  

Delivered a cashier-less, operationally optimized store reducing labor dependency and improving customer throughput, with successful turnover and stable opening performance.